2024

Commercial

Costco Wholesale

Mundy Township, MI

Costco Wholesale

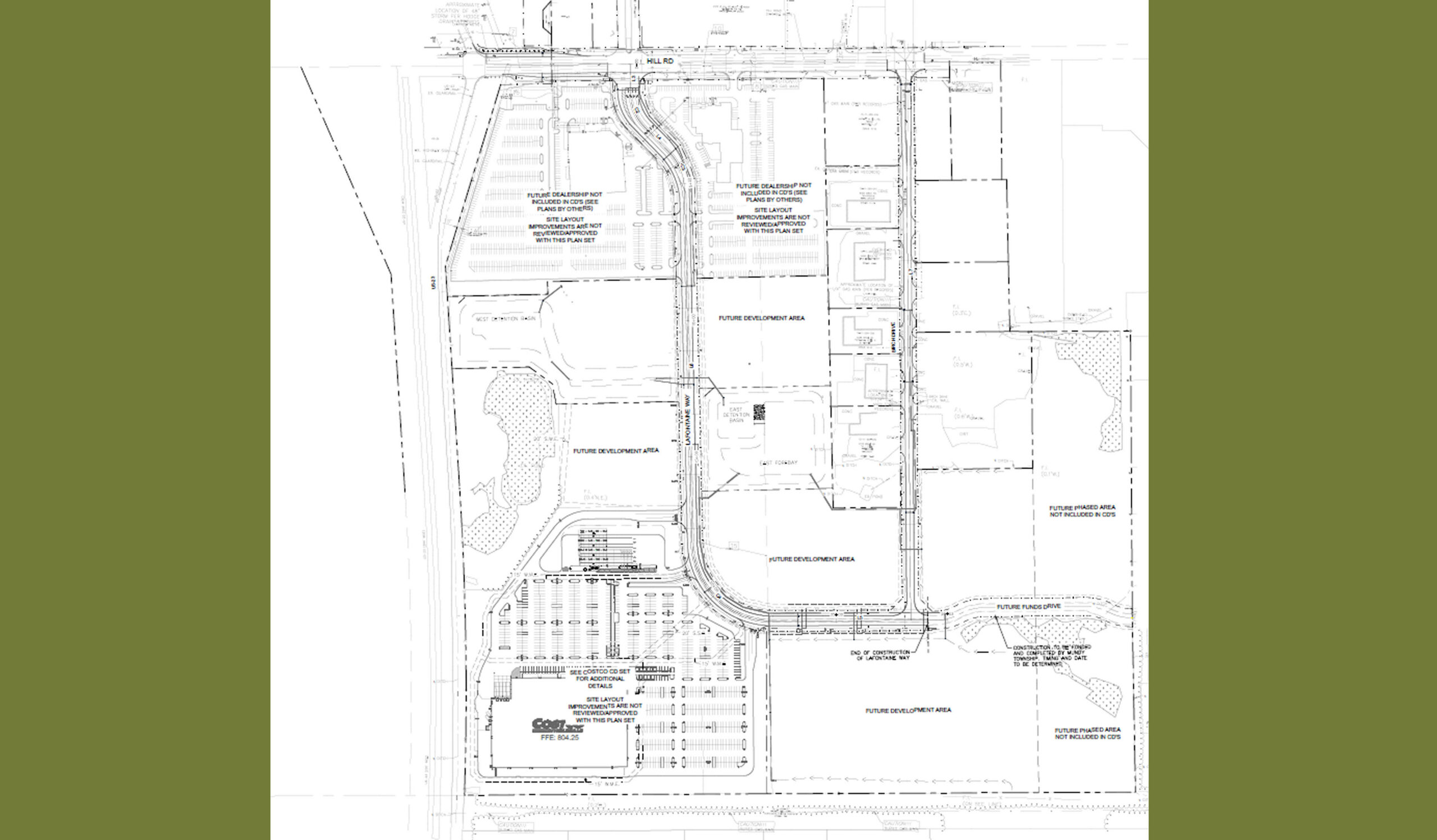
The Umlor Group provided construction staking services for a newly proposed multi-lot commercial development in Mundy Township. The project consisted of five commercial outlots, construction of a new loop road, and road widening along Hill Road and U.S. 23. The Umlor Group staked all mass grading, underground utilities, curb and paving improvements for the Costco building and gas station parcels. The project also included a drain relocation; right-of-way widening from the U.S. 23 off-ramp east toward Birch Drive; expansion of an existing detention basin; and construction of a new detention basin to serve the outlot parcels for future development. Costco Mundy is a strong example of The Umlor Group’s ability to collaborate effectively with outside engineering firms and contractors to successfully complete complex commercial projects.

•  SCOPE OF WORK

  • checked AS-BUILT SURVEY
  • checked CONSTRUCTION STAKING

Let’s Make It Happen.